
À Langon (Gironde), pour le département maître d’ouvrage, ABF-LAB (Étienne Feher, Paul Azzopardi) a livré en 2025 le Pôle Territorial de Solidarité Sud Gironde. Surface : 2 450 m². Coût : 8,50 M€ HT. Communiqué.
Né d’une commande pilote du Département de la Gironde basé sur un programme ambitieux* autour des sujets cruciaux de l’environnement, l’énergie, le climat et la santé – notamment la qualité de l’air –, ce projet se veut exemplaire sur ces aspects. Il revendique une construction à très faible empreinte, fondée sur un scénario environnemental radical où le bioclimatisme, la passivité et l’usage total de matériaux naturels se combinent pour proposer une nouvelle manière de construire.


Le projet affirme une architecture de sobriété et d’innovation : bâtir avec des matériaux bas carbone, recourir à des dispositifs LOW-TECH ingénieux, valoriser les savoir-faire artisanaux, offrir un confort pérenne et sain, tout en travaillant les matérialités par le prisme de leur intelligence microclimatique (confort, énergie, climat). L’économie circulaire et le réemploi sont également un des leviers bas carbone du projet. Le projet se détourne des produits émettant des COV, des matériaux énergivores et pétrochimiques, des ressources non renouvelables, de la dépendance au HIGH-TECH, de l’omniprésence du BA13 avec ses colles nocives et ses ossatures métalliques secondaires fragiles et prêtes à jeter, et enfin cherche également à limiter aussi au maximum la prolifération des équipements techniques (électricité, CVC).
Un millier de bottes de paille et 1 300 m² de MOB bois-terre-paille composent la structure et second œuvre (cloisons non porteuses), réalisée à 100 % en matériaux bio/géosourcés, y compris les cages d’escalier et ascenseurs en bois (innovant en ERP).


Exempte de pétrochimie (hors membrane d’étanchéité en toiture), la conception intègre des protections solaires extérieures efficaces grâce à une casquette garde-corps périphérique, des brise-soleil orientables et volets en osier tressés. Le projet valorise également le réemploi, avec la réutilisation de portes en bois et de 177 radiateurs issus de l’ancienne gendarmerie du site. Les choix de matériaux privilégient aussi un ancrage français : bardage en bois brûlé (douglas) offrant une pérennité d’au moins un siècle sans traitement ni maintenance, de l’épicéa français et pin des Landes.
Le confort d’été est assuré sans climatisation par une combinaison de dispositifs passifs : ventilation naturelle par tirage thermique 7 lanterneaux de toiture, inertie thermique apportée par les enduits de terre intérieure et un moucharabieh en briques de terre crue favorisant un microclimat intérieur. Enfin, la production énergétique repose sur des solutions renouvelables avec une centrale solaire photovoltaïque en toiture et une chaufferie biomasse bois.


Ce projet architectural a été conçu et pensé telle une maison d’accueil. Il émane une ambiance intérieure très chaleureuse essentiellement activée par la mise en œuvre de matériaux naturels (bois, enduit de terre, enduit chaux) sur l’ensemble des parois du projet (sols, plafonds, murs) répondant ainsi aux attentes d’un programme à vocation sociale.
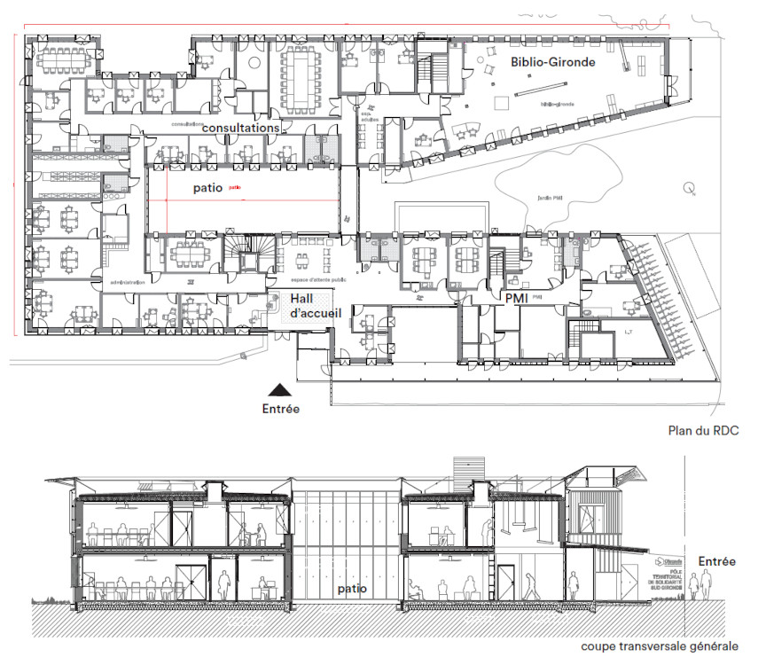
L’organisation spatiale intérieure s’orchestre autour d’un noyau central (hall d’accueil et patio) lumineux et desservant avec une orientation aisée l’ensemble des services sociaux accolés. Un programme dense et un plafond imposé à R+1 ont donné au bâtiment naturellement sa forme allongée en U, reliée par une passerelle jouant le rôle de trait d’union de l’organisation spatiale. L’écriture architecturale des façades “extérieures” tente d’effacer la lecture de deux niveaux visant à garder une taille “humaine” pour dialoguer avec l’échelle du quartier qui présente des maisons de plain-pied.


Les utilisateurs ont été formés à l’utilisation du bâtiment au travers de son “mode d’emploi bioclimatique” rapprochant ainsi conception architecturale-technique et usagers.
* Programme :
– biblio Gironde
– Pôle Jeunesse Territorial (PJT)
– P.M.I. (protection maternelle et infantile) et de promotion de la santé
– équipe Territorialisée d’Accueil Familial Enfance (ETAFE)
– mission insertion
– équipe Territoriale Autonomie
– Centre Local d’Information et Coordination autonomie (CLIC)
– une MAIA (structure de lutte contre la maladie d’Alzheimer)
– la Circonscription du Service Social